什么是全氟己酮自动灭火系统?
全氟己酮自动灭火系统是一种先进的气体灭火系统,广泛应用于各种火灾风险高、对环境和设备要求严格的场所。详细介绍柜式全氟己酮灭火系统的系统组成、工作原理、操作流程、独特优势、特点、注意事项以及应用场景。
全氟己酮灭火系统是一种先进的气体灭火系统,广泛应用于各种火灾风险高、对环境和设备要求严格的场所。本文将介绍柜式 全氟己酮灭火系统的系统组成、工作原理、操作流程、独特优势、特点、注意事项以及应用场景。
柜式全氟己酮灭火装置是一种预制的、以全淹没方式灭火、独立成套、可移动的灭火设备,它安装灵活方便、外形美观、灭火剂输送管道压力损失小、灭火效率高。它是将灭火剂瓶组、喷嘴和信号反馈部件等部件预先组合成套的灭火装置。在20℃时的贮存压力为2.5MPa,最大工作压力为3.2MPa。可以与消防控制中心相连接,由火灾报警灭火控制器驱动实施自动灭火。柜式全氟己酮灭火装置不需要设置专用的设备间,整套灭火设备均在保护区内。火灾发生时,在灭火控制器的驱动下,灭火装置直接向保护区喷射灭火剂,方便快捷。对于较大空间的保护可采用几套灭火装置联合保护的方式。当建筑物内无法设置专用的瓶组间,或虽然有瓶组间,但输送距离较远,不能满足工程设计的要求,或防护区内不便安装系统管网时,也可使用本装置。

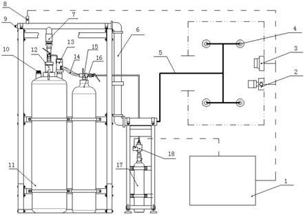
一、全氟己酮灭火系统组成
1. 储存容器:用于存储全氟己酮灭火剂的钢瓶或储罐。
2. 灭火装置:包括灭火喷头、喷嘴、管路等设备,用于将全氟己酮灭火剂释放到灭火区域。
3. 控制系统:包括控制面板、压力开关、报警装置等,用于监控和控制全氟己酮灭火系统的运行状态。
4. 探测器:如烟雾探测器、温度探测器等,用于监测火灾并触发系统启动。
二、工作原理
全氟己酮灭火系统采用化学灭火原理,即通过灭火剂的释放改变火灾环境,达到灭火的效果。全氟己酮是一种无色、无味、无毒的气体,在释放后迅速蒸发成为惰性气体,具有以下工作原理:
1. 抑制链式反应:全氟己酮能够抑制火灾的链式反应,阻断火焰的传播,降低火势。
2. 降低氧浓度:全氟己酮释放后蒸发成为惰性气体,降低火灾现场的氧浓度,使燃烧不再继续。
3. 快速扑灭火源:全氟己酮具有快速灭火速度,可以迅速扑灭火源,减少火灾造成的损失。

三、操作流程
全氟己酮灭火系统的操作流程通常包括以下几个步骤:
1. 火灾探测:系统通过探测器检测到火灾,触发报警信号。
2. 警报和预警:系统发出声光报警信号,提醒人员火灾发生,并预警启动灭火系统。
3. 灭火装置启动:根据预警信号,控制系统会启动全氟己酮灭火装置,释放全氟己酮灭火剂到灭火区域。
4. 灭火过程:全氟己酮灭火剂迅速蒸发,形成惰性气体,降低火灾现场的氧浓度,抑制火焰传播,扑灭火源。
5. 人员撤离:系统激活安全通道和应急照明,引导人员安全撤离火灾区域。
6. 系统复位与维护:火灾得到控制后,进行系统复位和维护,包括检查灭火装置、探测器和报警装置的状态,以确保系统正常运行。

四、全氟己酮灭火系统独特优势
1. 高效灭火:全氟己酮具有优异的灭火性能,能够迅速扑灭火源,减少火灾造成的损失。
2. 零残留:全氟己酮蒸发后不会留下任何残留物,不会对设备和档案资料造成损害。
3. 电气非导电性:全氟己酮是一种电气非导电介质,可安全用于电子设备和敏感设备的灭火。
4. 环保可持续:全氟己酮对大气层中的臭氧层没有破坏作用,不会对环境造成污染。
5. 空间占用小:全氟己酮灭火系统可以通过管道输送,不占用大量空间,适用于各种场所。
五、全氟己酮灭火系统特点
1. 快速响应:系统能够在火灾初期迅速响应,并启动灭火过程,有效控制火势的蔓延。
2. 自动化控制:系统配备先进的控制系统,能够自动监测和控制灭火过程,提高灭火的效率和准确性。
3. 可靠性高:全氟己酮灭火系统采用成熟的技术和可靠的设备,保证了系统的稳定性和可靠性。
4. 适用广泛:适用于各种火灾风险高的场所,如电子设备室、服务器室、控制室等。

六、当使用全氟己酮灭火系统时,需要注意以下事项:
1. 设计规范:系统的设计和安装必须符合相关的规范和标准,确保系统的有效性和安全性。
2. 人员培训:工作人员应接受全面的培训,了解系统的操作流程、报警信号的识别和紧急撤离的方法。
3. 维护保养:定期对全氟己酮灭火系统进行维护和检查,确保其正常运行和可靠性。包括检查压力、泄漏、阀门和喷嘴等部件的状态。
4. 周期性测试:定期进行系统的测试和演练,以验证系统的可用性和有效性。同时,测试应与当地相关机构和消防部门进行协调。
5. 适用性评估:在选择使用全氟己酮灭火系统时,需要评估系统的适用性,考虑火灾风险、环境因素和设备要求等因素。
6. 风险评估:在系统设计过程中,进行详细的火灾风险评估,确保系统能够满足档案室的特定需求,并确保其可靠性和安全性。

七、应用场景
全氟己酮灭火系统适用于各种对火灾风险高、对环境和设备要求严格的场所,包括但不限于:
1. 电子设备室:如计算机机房、数据中心、通信基站等。
2. 控制室和开关室:用于控制工艺或设备的运行的场所。
3. 档案室和图书馆:用于保护重要档案资料和珍贵文献的场所。
4. 博物馆和艺术馆:用于保护文物、艺术品和珍贵展品的场所。
5. 化学实验室和生物实验室:用于保护实验设备和防止实验品发生火灾的场所。
全氟己酮灭火系统作为一种先进的气体灭火系统,在各种高风险场所中发挥着重要作用。它通过释放全氟己酮灭火剂,迅速抑制火焰、降低氧气浓度,有效扑灭火灾。然而,在使用全氟己酮灭火系统时,需要遵循相关规范和标准,进行系统的维护保养和定期测试,并对系统的适用性进行评估。全氟己酮灭火系统的独特优势包括高效灭火、零残留、电气非导电性、环保可持续以及占用空间小。它具有快速响应、自动化控制和高可靠性的特点。全氟己酮灭火系统适用于电子设备室、控制室、档案室、博物馆、化学实验室等场所,以保护重要设备、文物、档案资料和珍贵展品的安全。

